Viking-site wordt groen, rondom en in het hart

Michiel Riedijk

'Het moet mooi en goed worden voor de stad en voor de gebruikers. Dat kan door samen te werken, naar elkaar te luisteren.'

'Wat wij bouwen moet duurzaam zijn: zo lang mogelijk meegaan, mooier worden in de loop van de tijd, zo min mogelijk schaarse grondstoffen gebruiken en goed zijn. Voor mens en milieu.'

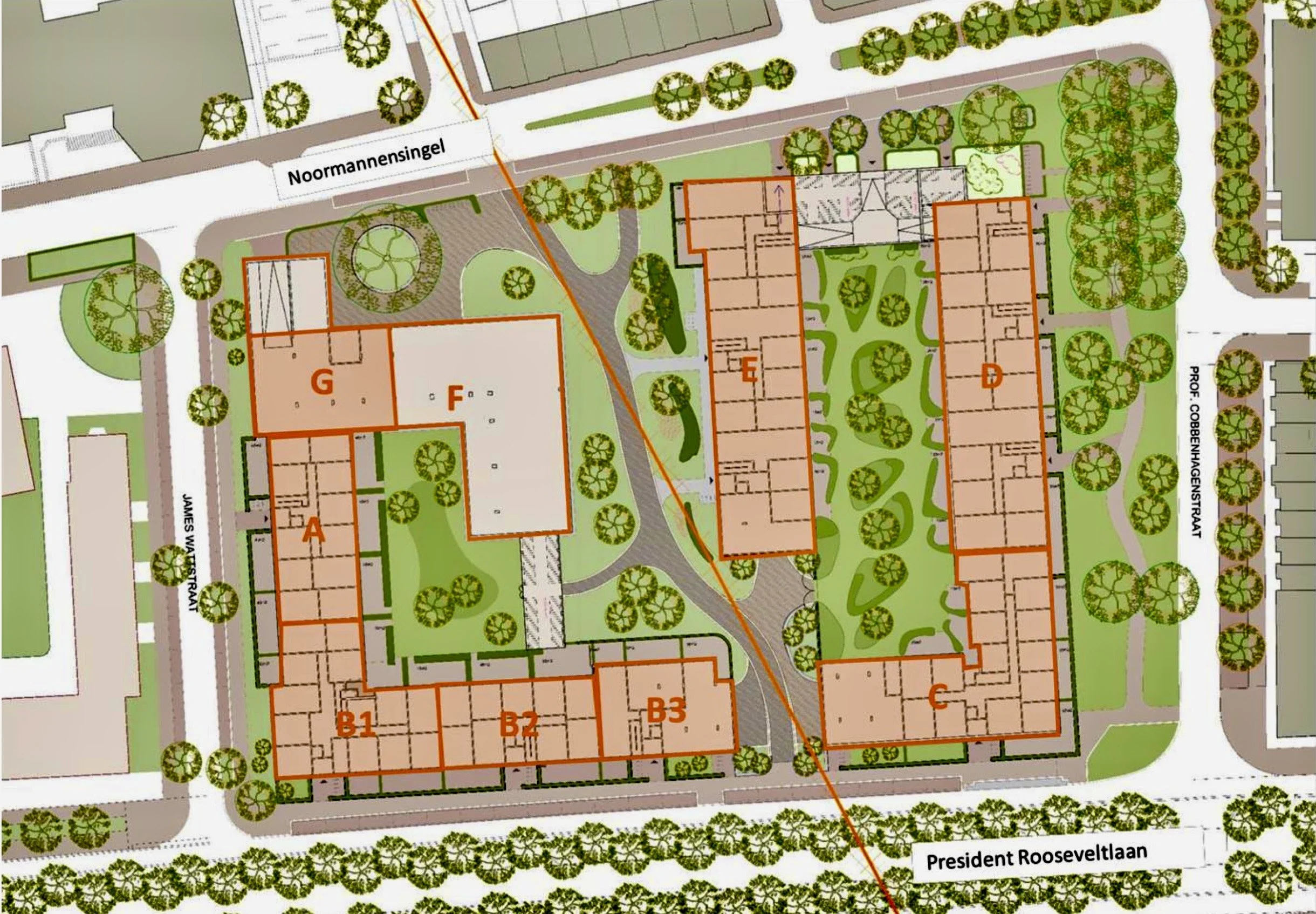
De nieuwbouw op het vroegere KPN-terrein krijgt een groen karakter. Er wordt zo gebouwd dat de bomen aan de Noormannensingel en aan de Cobbenhagenstraat blijven staan. Ook komen er binnentuinen voor de bewoners en een openbare binnentuin.

Dat werd duidelijk tijdens een bijeenkomst eind mei in het Trefcentrum. Architect Michiel Riedijk van bureau Neutelings en Riedijk uit Rotterdam mocht het groene nieuws brengen. Projectontwikkelaars ViRiX uit Lummen (B) en 3W uit Maastricht hebben zijn bureau gekozen op basis van eerder werk in Nederland en België en vanwege het enthousiasme tijdens de selectie-procedure.

Echo van de kerk
Michiel Riedijk en zijn project-architect Bas Veerman hebben sindsdien de grote lijnen van het grote bouwproject uitgewerkt. Eind 2026 moeten de ontwerpen van de verschillende gebouwen helemaal klaar zijn. Dan zal ook blijken of de hint van Edzo Bindels door de Rotterdammers is opgepakt. Bindels is al sinds het begin van het Groene Loper-project supervisor samen met architect Fred Humblé uit Maastricht. Bindels wees tijdens de bijeenkomst op de prominent aanwezige Lourdes-kerk aan de overkant van de Groene Loper: 'Het zou mooi zijn als er ergens de echo van de kerk en zijn architectuur terug komen in het ontwerp. Ik weet niet of dat gaat gebeuren maar we hebben in eerdere projecten op de Groene Loper veel met gele baksteen gewerkt vanwege de kleur van de mergel van de kerk.'

Voor elk soort stadsbewoner
Op het ruim 11.000 m2 grote terrein van wat nu de Viking-site heet komen:
- ruim 300 appartementen: koop-,  midden en sociale huur en 43 studentenkamers.
- twee ondergrondse parkeergarages voor bewoners met in- en uitrit aan de Noormannensingel,
- 5.600 m2 ruimte voor bedrijven waaronder kantoren met werkplekken die worden verhuurd,
- 800 m2 voor kleinschalige horeca, winkels of voor een buurtfunctie.

De mix van appartementen inclusief sociale huur moet er voor zorgen dat de Viking-site woonruimte biedt ‘voor elk soort stadsbewoner en alle leeftijden’. De sociale huur komt aan de Watt-straat tussen Groene Loper en Noormannensingel.
In de 11 verdiepingen hoge woontoren komen beneden kantoorruimtes, daarboven studenten-studio's en op de hogere etages huur-appartementen. Alle ingangen tot de woongebouw liggen aan de buitenkant, naar de straat toe. 'Dat geeft reuring, mensen op straat zodat het er 's avonds ook veilig is', legde Michiel Riedijk uit.

Commentaar en vragen via 'geeltjes'
Tijdens de bijpraat-avond in het Trefcentrum werden de buurtbewoners uitgenodigd om vragen, complimenten en commentaar te noteren op 'geeltjes'. De oogst van die reactie-ronde is lees-voer voor de plannenmakers. Duidelijk is dat de gemeente ook een deel van de geeltjes mag verwachten. Nogal wat inwoners van Wyckerpoort zijn bezorgd over de toename van het verkeer in de woonbuurt door de bouwplannen Cour, Viking-site en rechtbank. De gemeente heeft eerder al toegezegd met een samenhangend verkeersplan te komen.   

Het tijdpad naar wonen:

- 2026-2027: ontwerpen gebouwen en vereiste vergunningen verwerven van de gemeente.
- 2028: start bouw met aanleg van de infrastructuur (wegen, riool, stroom etc.)

Buurtbewoners konden reacties aandragen via ‘geeltjes’.